Key features

  • Elevated rural setting with panoramic views across the Towy Valley to the Black Mountains
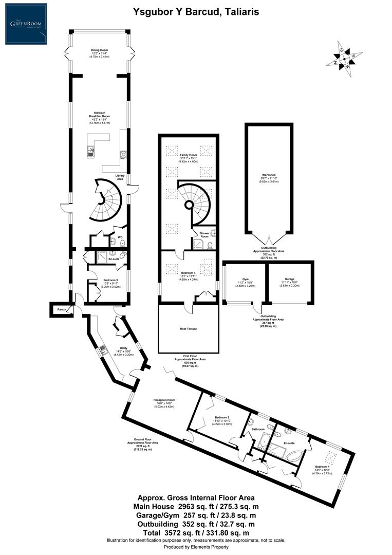
  • Characterful barn and dairy conversion with four en-suite bedrooms extending to 2,963sqft.
  • Approximately 7.04 acres including gardens, paddocks and wildlife pond
  • Exceptional gardens with established productive planting and orangery-style greenhouse

Full property Description

Panoramic views, established gardens and a quietly exceptional rural lifestyle.

A beautifully remodelled former barn and dairy conversion, set high above the Towy Valley with remarkable views, generous land, and a rare sense of calm. This is a home shaped by landscape, light and a slower, more rewarding way of living.

The Property

Ysgubor Y Barcud is a striking and thoughtfully converted country home, offering approximately 2,963 sqft of versatile, high-quality accommodation arranged around an attractive inner courtyard. Formerly a farm building and dairy, the conversion blends architectural character with modern comfort, including underfloor heating throughout.

The main living spaces are both generous and atmospheric. A superb open-plan kitchen and living area sits beneath a vaulted, cathedral-style ceiling with exposed timbers and a central circular fireplace, creating a warm and sociable heart to the house. The adjoining timber-framed garden room, with doors opening onto a terrace, draws the eye outward to uninterrupted countryside views stretching towards the Black Mountain range and the Brecon Beacons.

A further sitting room within the former dairy conversion features another vaulted ceiling, exposed beams and a wood-burning stove, with bi-fold doors opening directly onto the garden terrace—an ideal space for quieter evenings or entertaining against the backdrop of the hills. A galleried reception room overlooks the main living space and works beautifully as a home office, studio or winter snug.

The property offers four generous double bedrooms, all with en-suite facilities. The principal suite is particularly impressive, with a luxurious bathroom including a jacuzzi bath, large shower and twin basins. Throughout, the accommodation feels both well-considered and adaptable, suited equally to family living, multi-generational use or a lifestyle-led move to the country.

Externally, the grounds extend to approximately 7.04 acres, incorporating formal gardens, paddocks and a wildlife pond. The gardens are a genuine highlight, carefully planted with a wide variety of specialist plants and established productive areas. There are raised vegetable beds including asparagus and strawberries, a fruit cage with mature soft fruit bushes, and a charming lean-to orangery-style greenhouse housing established apple trees and a fig. A timber-clad outbuilding, currently used as a gym, offers further flexibility as a home office or studio. Carport, Dutch barn and ample parking complete the setting.

Tenure: Freehold

Services: Mains electricity, shared borehole water supply, non-mains drainage, oil-fired central heating

Council Tax: Band G – annual charge £3,270

EPC Rating: F

The Location

Read more

Location

Directions to this property

Interested in this property?

Why not speak to us about it? Our property experts can give you a hand with booking a viewing, making an offer or just talking about the details of the local area.

Property EPC 1

Similar properties